24 nov. 2019, 07:26Realitatea de BrasovAveți buletinul expirat și credeți că nu puteți vota? Program cu publicul, astăzi, la Serviciul de Evidența Persoanelor!
24 nov. 2019, 07:24Realitatea de BrasovCâți brașoveni sunt așteptați la urne? Unde sunt amplasate secțiile de votare?
24 nov. 2019, 07:00Realitatea de BrasovSTART VOT! Tot ce trebuie să ştiţi despre alegerile prezidenţiale de astăzi
23 nov. 2019, 20:06Realitatea de BrasovŞoferii care au transportat buletinele de vot au fost verificaţi de poliţişti
22 nov. 2019, 14:45Realitatea de BrasovReorientare profesională la RAT Brașov! Fost magazioner, actual șofer de autobuz
22 nov. 2019, 14:05Realitatea de BrasovLucrările Companiei Apa continuă între străzile Roșiorilor și Petru Rareș
22 nov. 2019, 11:04Realitatea de BrasovFOTO+VIDEO Cu câte utilaje va interveni DRDP Brașov pentru deszăpezirea județului?
22 nov. 2019, 09:26Realitatea de BrasovFOTO Focare de infecție! Decizie radicală luată de Primăria Brașov!
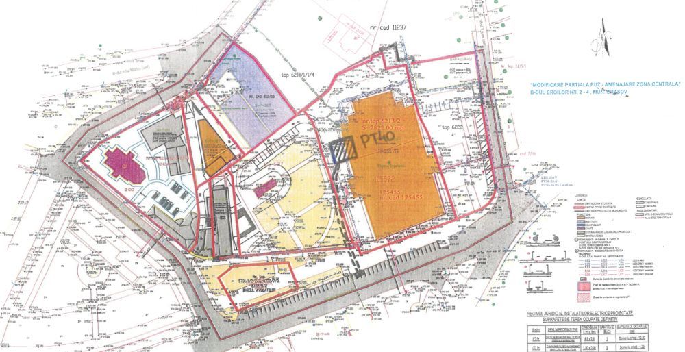
22 nov. 2019, 06:53Realitatea de BrasovUnde va fi amenajată noua stație de încărcare a mașinilor electrice?
21 nov. 2019, 15:15Realitatea de BrasovPreședintele Federației Române de Handbal: "Naționala risca excluderea de la Mondialul din Japonia, din cauza scandalului de la Corona"